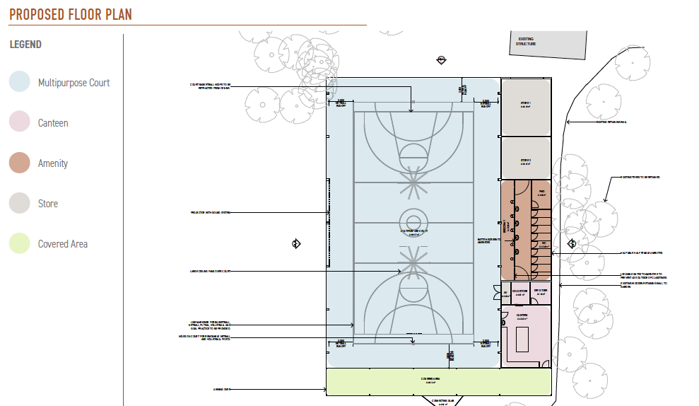
We're thrilled to share that our Community Engagement Group is raising funds to support the school in constructing an exciting new project — an Undercover Sports Court with an attached canteen and toilet block on Hunter Oval budgeted to begin in 2026.
This proposed new facility will provide a safe, all-weather space for students to play, learn, and gather, while also supporting school events and sports programs. Please see below preliminary draft plans for the proposed complex.


Check how our fundraising is going here -
.jpg)